
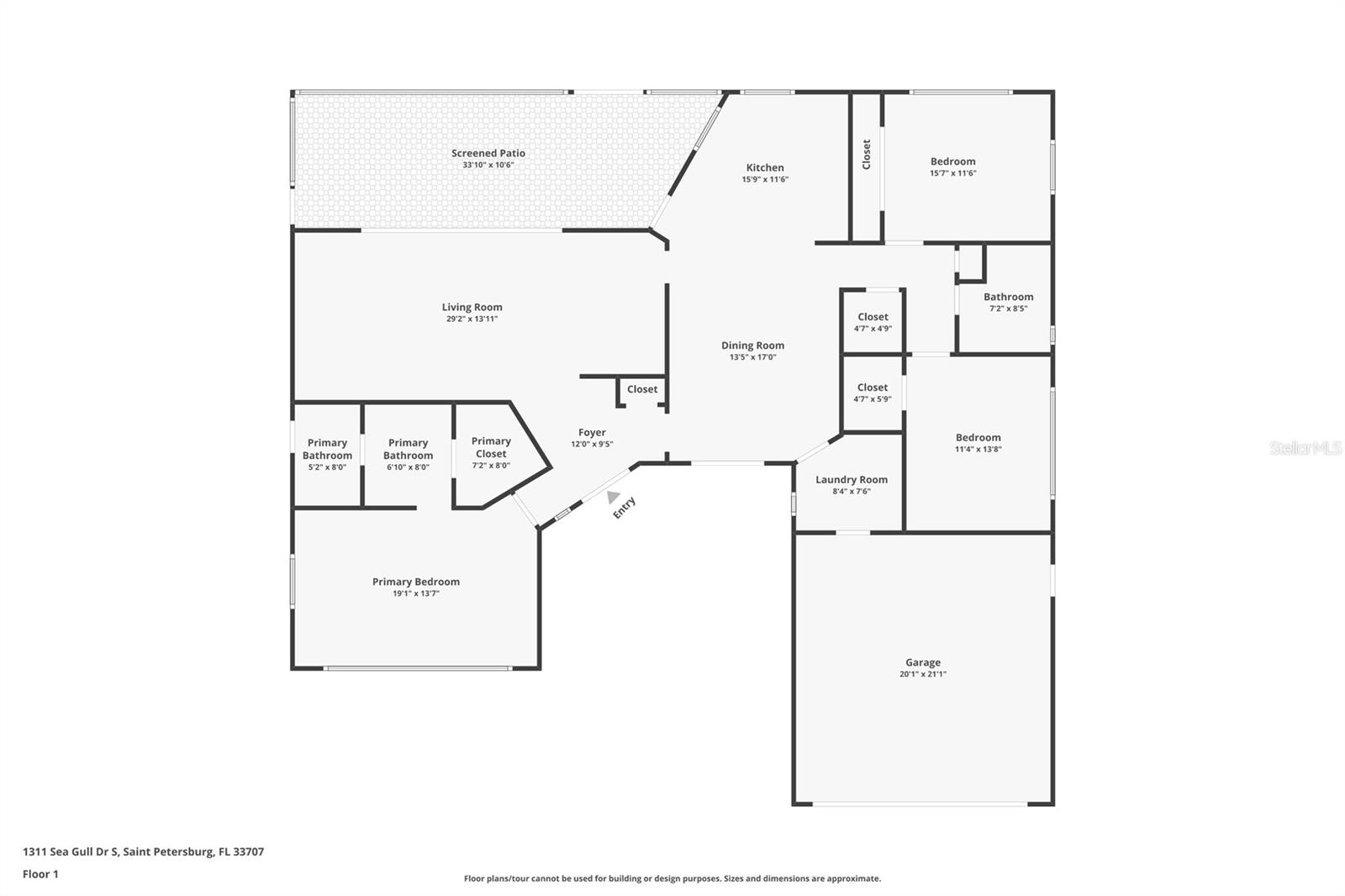
Under contract-accepting backup offers. One or more photo(s) has been virtually staged. Seize the chance to create your ultimate waterfront oasis between relaxing South Pasadena and vibrant Gulfport, FL! This 3-bedroom, 2-bathroom, 2-car garage home, spanning 1,858 sqft, is a canvas of opportunity, beaming with potential and offering stunning water views from nearly every room. Nestled on an 85-ft deepwater canal, this property is a boater’s dream, perfect for larger vessels or sailboats. Across the canal, a local marina provides a picturesque view of gentle boat traffic, creating a serene backdrop for relaxing at home. Just steps away, the adjacent mangroves are highly rated by locals for exceptional fishing, adding to the property’s allure for outdoor enthusiasts. While the home sustained hurricane damage last year, it has been officially classified as NOT SUBSTANTIALLY DAMAGED and has a generous allowable improvement threshold from FEMA, ensuring a smoother path to restoration and including your vision for transforming this gem into a custom coastal paradise. The recently renovated pool and rear dock emerged unscathed, showcasing top-tier upgrades completed just before the storm. The pool dazzles with fresh pavers and a newly resurfaced interior, while the dock features durable Trex decking, a lower service deck, kayak launch, hidden pilings, PVC docking poles, and retractable cleats, designed for effortless waterfront enjoyment. Located in the heart of Gulfport’s charming community, this property offers a rare blend of prime location, resilient features, and significant financial support for renovations. Don’t miss this unique opportunity to craft your dream waterfront retreat with endless possibilities! This listing includes artistic renderings of potential renovations
| MLS # | TB8377934 |
|---|---|
| Listing Type | For Sale |
| Style | House |
| Sub-Type | For-sale |
| Status | Pending |
| Year | 1971 |
| Days On Site | 179 |
| Listing Provided By | A BETTER LIFE REALTY | Morgan Ellis |
| Bed(s) | 3 |
|---|---|
| Bath(s) | 2 Total |
| SQ Feet | 1,858 |
| Garage | 2 |
| Pool | Yes |
| Story(s) | 1 |
| Zoning | R-3 |
| Acreage | 0.41 |
| Water Front | Yes |
| Property | 3831 |
|---|
| State | FL |
|---|---|
| County | Pinellas |
| City | ST PETERSBURG |
| Zip Code | 33707 |
| Area | 33707 St Pete | South Pasadena | Gulfport | St Pete Bch |
| Community Name | PASADENA GOLF CLUB ESTATES SEC 4 |
| State | FL |
|---|---|
| County | Pinellas |
| City | ST PETERSBURG |
| Zip Code | 33707 |
| Area | 33707 St Pete | South Pasadena | Gulfport | St Pete Bch |
| Community Name | PASADENA GOLF CLUB ESTATES SEC 4 |