$325,000
 $1,745 est/mo Sourced by Back At You

3550 Fairwaters Ct #d,CLERMONT, FL 34711

CLERMONT, FL 34711

Share:

Description

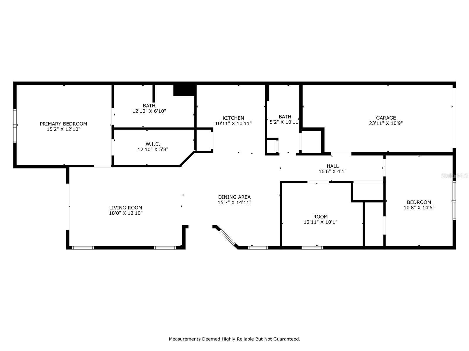
Welcome to this charming and beautifully maintained 2-bedroom, 2-bath villa with a versatile bonus roomperfect as an office, den, or even a third bedroom. Ideally located at the end of a quiet cul-de-sac in the desirable 55+ community of Heritage Hills, this home offers privacy, comfort, and convenience in one thoughtfully designed package. Step inside through the side entry or directly from your attached one-car garage and be greeted by an abundance of natural light and a spacious open-concept floor plan. The living room, dining area, and kitchen flow seamlessly together, making it easy to entertain or simply enjoy everyday living. The kitchen is a delight, offering ample wood cabinetry, expansive granite countertops, and stainless steel appliancesperfect for preparing meals and hosting guests. Wood like tile flooring runs throughout the main living areas and luxury vinyl plank flooring in the primary suite, providing both style and durability. Your generously sized primary suite is a peaceful retreat featuring a large walk-in closet, a well-appointed en-suite bathroom with dual granite vanities, and a spacious walk-in shower. From the bedroom, step out to your fully screened lanaia serene space to relax, enjoy the fresh air, and take in the beautifully landscaped garden, complete with your very own papaya tree. The guest bedroom is privately located at the end of the hall, offering comfort for visitors or potential use as a hobby space. Nearby, the guest bathroom features granite countertops and a shower/tub combo. The bonus room across the hall provides flexibility to suit your lifestylewhether you need a home office, craft room, or additional sleeping space. A tucked-away laundry area includes shelving for added storage and convenience. This home also features great curb appeal and practical perks like a one-car garage for secure parking and storage, plus the added bonus of having your mailbox right at the end of the driveway. Residents of Heritage Hills enjoy access to an incredible array of resort-style amenities, all centered around a stunning 19,000-square-foot Mediterranean-inspired clubhouse. Outdoor offerings include a large heated pool with spa, tennis, pickleball, basketball, shuffleboard, bocce ball, walking and biking trails, picnic areas, a gazebo, and a dog park. Inside the clubhouse, you’ll find a fitness center, aerobics/dance studio, billiards room, golf simulator, library, art studio, card and poker rooms, and a 500-seat ballroom for community events and private gatherings. Located just about 23 minutes from downtown Clermont and about 35 minutes from Disney World, this villa offers the perfect balance of peaceful living and easy access to Central Florida’s best attractions. Whether you’re looking to relax, stay active, or enjoy vibrant community living, this home has it all. Schedule your private tour today and discover the lifestyle waiting for you at Heritage Hills! Some photos may have been digitally enhanced for marketing purposes.

Details

MLS #G5097426
Listing TypeFor Sale
HOA Dues$447
Sub-TypeFor-sale
StatusActive
Year2017
Days On Site162
Listing Provided ByOPTIMA ONE REALTY, INC. | Heather Walker

Features

Bed(s)2
Bath(s) 2 Total
SQ Feet1,503
Garage1
Story(s)1
ZoningPUD
Acreage0.09

Taxes

Property2606

Area Information

StateFL
CountyLake
CityCLERMONT
Zip Code34711
Area34711 Clermont
Community NameHERITAGE HILLS PH 6B
Sourced by Back At You

Request a showing

Request a showing

Loading Form

 Listings courtesy of Stellar MLS as distributed by MLS GRID.Based on information submitted to the MLS GRID as of November 7, 2025 at 7:48:23 PM PST All data is obtained from various sources and may not have been verified by broker or MLS GRID. Supplied Open House Information is subject to change without notice. All information should be independently reviewed and verified for accuracy. Properties may or may not be listed by the office/agent presenting the information. The Digital Millennium Copyright Act of 1998, 17 U.S.C. § 512 (the “DMCA”) provides recourse for copyright owners who believe that material appearing on the Internet infringes their rights under U.S. copyright law. If you believe in good faith that any content or material made available in connection with our website or services infringes your copyright, you (or your agent) may send us a notice requesting that the content or material be removed, or access to it blocked. Notices must be sent in writing by email to DMCAnotice@MLSGrid.com. “The DMCA requires that your notice of alleged copyright infringement include the following information: (1) description of the copyrighted work that is the subject of claimed infringement; (2) description of the alleged infringing content and information sufficient to permit us to locate the content; (3) contact information for you, including your address, telephone number and email address; (4) a statement by you that you have a good faith belief that the content in the manner complained of is not authorized by the copyright owner, or its agent, or by the operation of any law; (5) a statement by you, signed under penalty of perjury, that the information in the notification is accurate and that you have the authority to enforce the copyrights that are claimed to be infringed; and (6) a physical or electronic signature of the copyright owner or a person authorized to act on the copyright owner’s behalf. Failure to include all of the above information may result in the delay of the processing of your complaint.

Contact

Learn More About This Property

StateFL
CountyLake
CityCLERMONT
Zip Code34711
Area34711 Clermont
Community NameHERITAGE HILLS PH 6B
Sourced by Back At You
Nearby Listings (Within 1/10 mile)
Price: $243K - $406K
sqft: 1,000 - 1,500
Nearby Listings Property ImageNearby Listings Details
3550 FAIRWATERS CT #C Property Photo 1
$305,000
3550 Fairwaters Ct #c
Clermont, FL 34711
Listing Updated: November 6, 2025 at 8:19:00 PM PST