
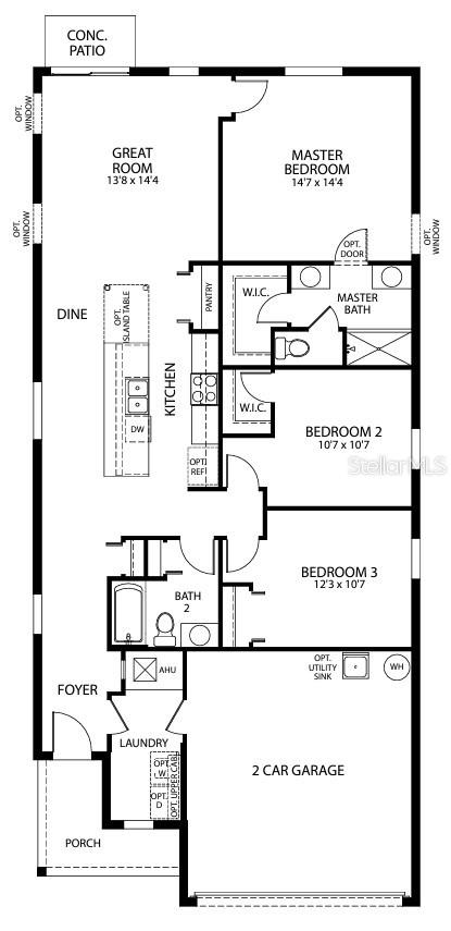
Price Reduced ListingUnder Construction. This charming home maximizes every inch, starting with an inviting front porch and entryway that leads into a mudroom, offering easy access to the spacious garage. It seamlessly connects to the expansive family room, the heart of the home, where a large window fills the space with natural light. Positioned at the rear, the airy breakfast room features a large sliding glass door that brings in even more light, creating a bright and welcoming atmosphere. The kitchen in The Victoria is a chef’s dream, complete with elegant granite countertops, stylish shaker cabinets, and a 27-cubic-foot stainless steel side-by-side refrigerator. A convenient pass-through to the family room, abundant pantry space, and the option for an island enhance both functionality and style. Durable ceramic tile flooring extends throughout the main living areas, while plush carpeting adds warmth and comfort to the bedrooms. The master suite, tucked away at the back of the home for added privacy, includes a spacious walk-in closet and a private bathroom. The master bath features a luxurious walk-in tile shower with a shower enclosure, providing a spa-like experience. The two additional bedrooms are generously sized, each with ample closet space. The laundry room comes complete with a washer and dryer, making everyday tasks more convenient. Outside, the landscaping and irrigation system ensure a beautifully maintained yard with minimal effort. With a second full bath, a two-car garage, and a thoughtfully designed layout, The Victoria offers a perfect blend of practicality and coziness, making it an inviting retreat in the heart of Villamar. Includes full builder warranties.
| MLS # | O6202074 |
|---|---|
| Listing Type | For Sale |
| Style | House |
| HOA Dues | $156 |
| Sub-Type | New Construction |
| Status | Active |
| Year | 2024 |
| Days On Site | 553 |
| Listing Provided By | NEW HOME STAR FLORIDA LLC | Charles Pennant |
| Bed(s) | 3 |
|---|---|
| Bath(s) | 2 Total |
| SQ Feet | 1,492 |
| Garage | 2 |
| Story(s) | 1 |
| Acreage | 0.10 |
| Property | 905 |
|---|
| State | FL |
|---|---|
| County | Polk |
| City | WINTER HAVEN |
| Zip Code | 33884 |
| Area | 33884 Winter Haven | Cypress Gardens |
| Community Name | VILLAMAR PH 5 |
| State | FL |
|---|---|
| County | Polk |
| City | WINTER HAVEN |
| Zip Code | 33884 |
| Area | 33884 Winter Haven | Cypress Gardens |
| Community Name | VILLAMAR PH 5 |